Início
Sobre
Serviços
Projetos
Obras
Seja um investidor
Contatos
Início
Sobre
Serviços
Projetos
Obras
Seja um investidor
Contatos
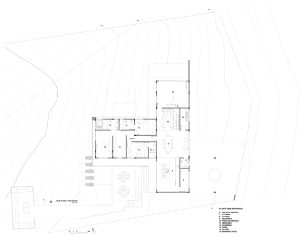
Casa DNL
Danilo e Cláudia
clientes
Jardim Botânico, Brasília/DF, 2021